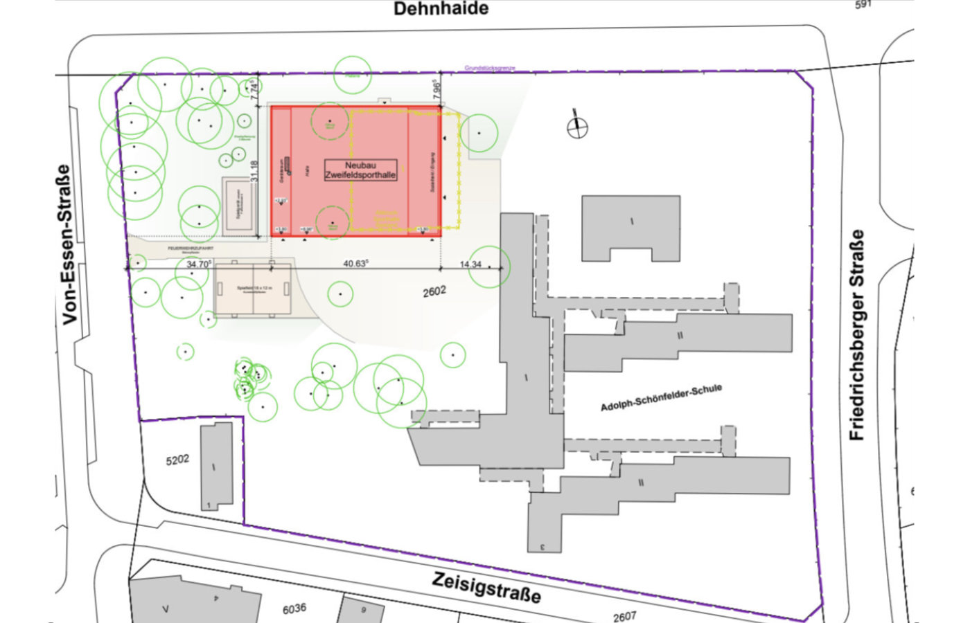
Ersatzbau einer Zweifeldsporthalle für einen Grundschulstandort

Zeisigstraße 3, Hamburg

SBH Schulbaubehörde Hamburg (im Auftrag der FHH)

Projektleitung und Projektsteuerung Stufen 1-5 AHO

1.267 m² BGF

10/2022 – 09/2024

zurück zur Übersicht